和歌山県 和歌山市
80.01㎡ (24.2坪)
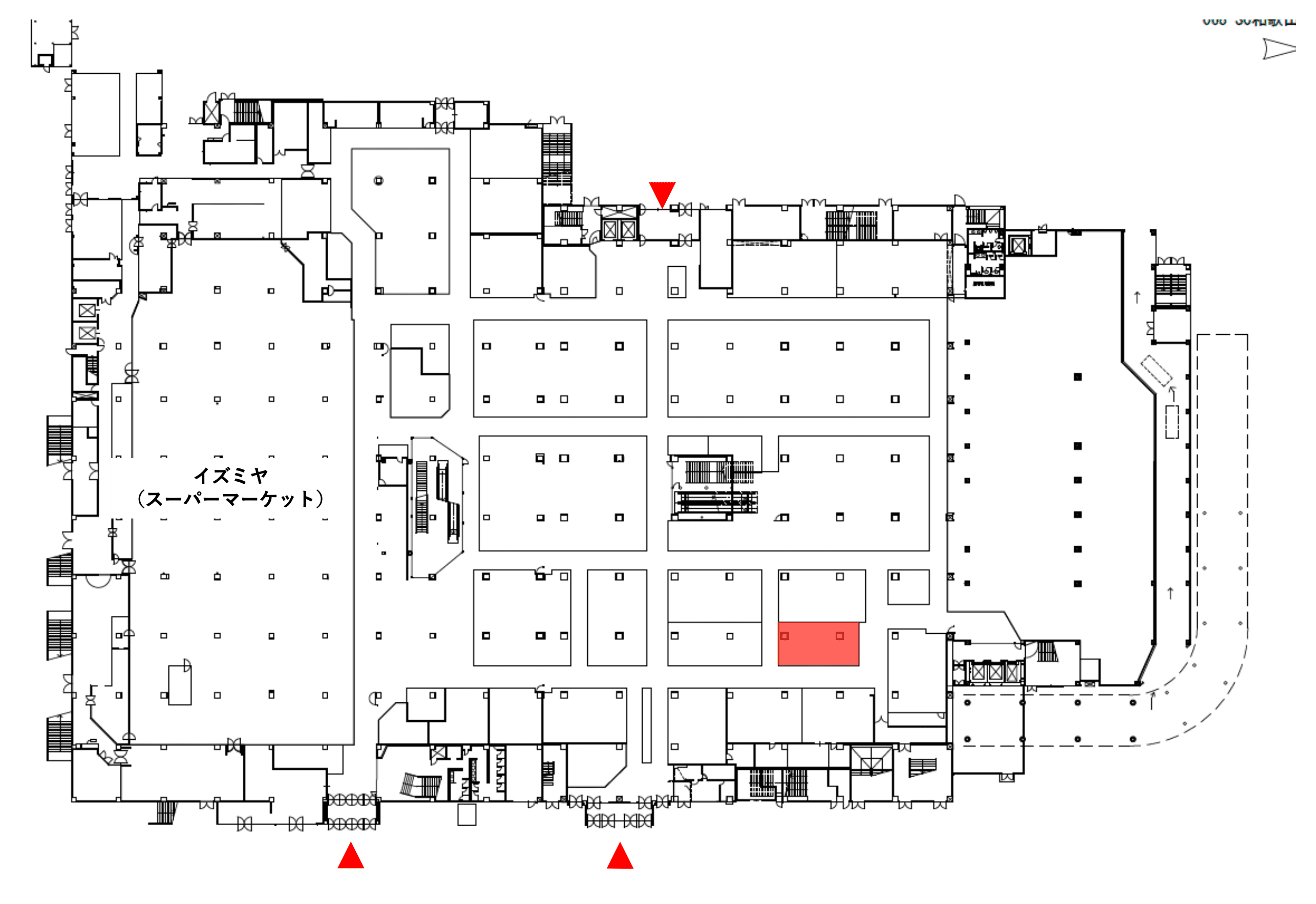
図面・フロアマップ

紀の川にほど近く、和歌山の街に根ざした当センターは、広大な駐車場を完備した「食と暮らしの大型拠点」です。鮮度自慢の食料品はもちろん、生活雑貨、ファッション、人気の専門店までが揃う圧倒的な利便性が魅力。広々とした館内は、お買い物ついでに家族でゆっくり過ごせる開放感にあふれています。これからも、この街の「なくてはならない場所」として、地域の皆様に笑顔と豊かな毎日をお届けし続けます。
物販
食品・生鮮・惣菜・グロサリー
食物販(個包装、贈答菓子等)
食物販(切り売り、量り売り等)
軽飲食(カフェ等)
重飲食(レストラン等)
理美容・サロン
病院・クリニック・薬局
スポーツジム・フィットネス
学習塾・子供向け教室
語学・資格・カルチャー教室
アミューズメント
サービス提供
展示・ギャラリー
政府・自治体・公共団体
個別空調
個別電源
給排水
厨房・調理設備
ガス
給湯
防音
専用入口
和歌山県和歌山市
イズミヤショッピングセンター和歌山食品スーパー、日用品、便利なサービステナントが勢ぞろい。毎日のお買い物をトータルサポートするフロアです。