奈良県 北葛城郡
78.68㎡ (23.8坪)
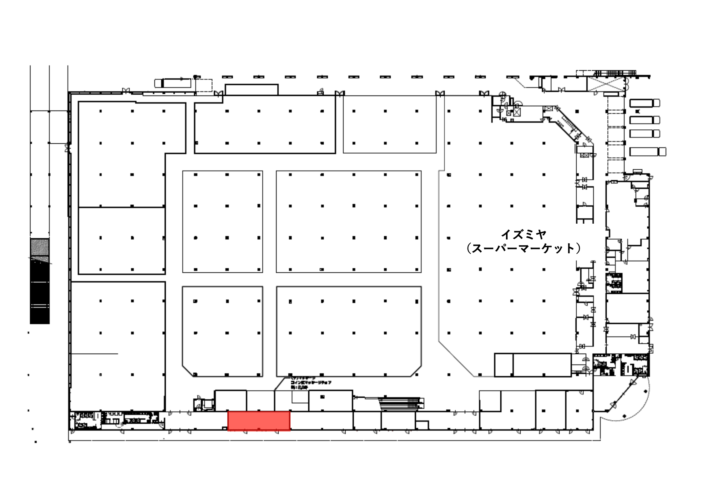
図面・フロアマップ

広陵町の穏やかな街並みに溶け込む当センターは、広い駐車場を完備し、お車でのまとめ買いにも便利な「地域の暮らしの拠点」です。鮮度抜群の食料品はもちろん、生活雑貨や衣料品、人気の100円ショップまで、日常の必需品がワンフロア感覚で揃う利便性が自慢。お子様連れからシニアの方まで、誰もがゆったりとお買い物を楽しめる温かな空間で、これからもこの街に「なくてはならない場所」として皆様の毎日を支え続けます。お気軽にお問い合わせください。
物販
食品・生鮮・惣菜・グロサリー
食物販(個包装、贈答菓子等)
食物販(切り売り、量り売り等)
軽飲食(カフェ等)
重飲食(レストラン等)
理美容・サロン
病院・クリニック・薬局
スポーツジム・フィットネス
学習塾・子供向け教室
語学・資格・カルチャー教室
アミューズメント
サービス提供
展示・ギャラリー
政府・自治体・公共団体
個別空調
個別電源
給排水
厨房・調理設備
ガス
給湯
防音
専用入口