京都府 京都市
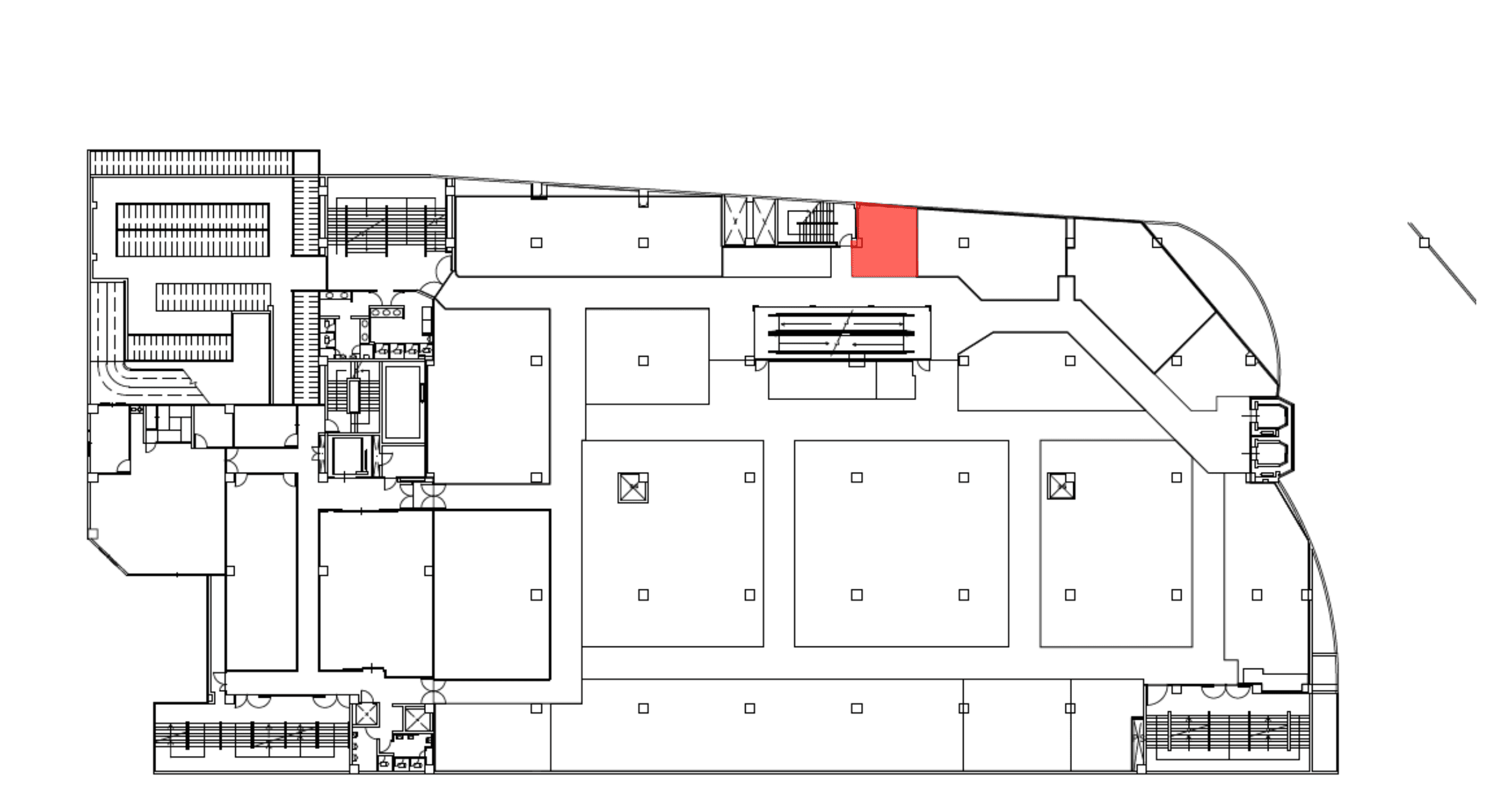
23.8㎡ (7.2坪)
図面・フロアマップ

北野白梅町駅に隣接し、地域のシンボルとして親しまれる当センター。最大の魅力は、活気あふれる食料品フロアから、日用品、衣料品、ドラッグストアまでが揃う圧倒的な利便性です。学生さんからシニア層まで、多世代が快適に過ごせる館内には、お買い物ついでにホッと一息つける憩いの空間も充実。京都の日常に寄り添い、これからもこの街に「なくてはならない場所」として、皆様の豊かな暮らしを支え続けます。お気軽にお問い合わせください。
物販
食品・生鮮・惣菜・グロサリー
食物販(個包装、贈答菓子等)
食物販(切り売り、量り売り等)
軽飲食(カフェ等)
重飲食(レストラン等)
理美容・サロン
病院・クリニック・薬局
スポーツジム・フィットネス
学習塾・子供向け教室
語学・資格・カルチャー教室
アミューズメント
サービス提供
展示・ギャラリー
政府・自治体・公共団体
個別空調
個別電源
給排水
厨房・調理設備
ガス
給湯
防音
専用入口